11 North Moore
71,500 square feet
10 stories, 18 units
New York, New York
2016
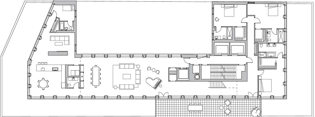
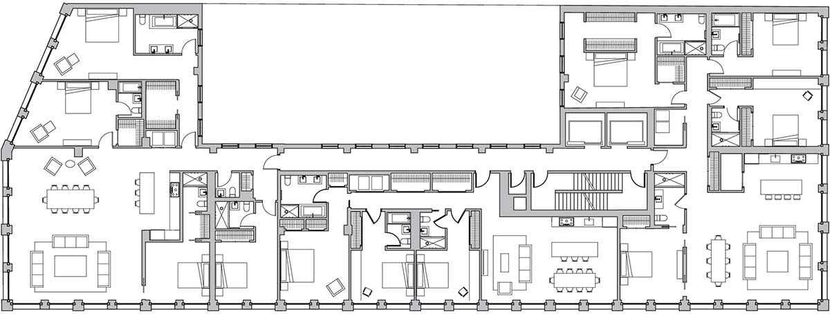
Designed in collaboration with Aldo Andreoli, the exterior of 11 North Moore is sheathed in limestone and black granite with a two-story base of blackened steel framing and operable floor-to-ceiling windows. The large units in this Tribeca condominium feature refined interior finishes that complement the building’s limestone façade, which reflects both classical and industrial influences. Atop the building are duplex units with private swimming pools.
Design & Construction







