Morris Adjmi Architects

Atlantic Plumbing 901W / Whyle

354,000 square feet
11 stories, 260 units
Washington, D.C.
2021

The third phase of the Atlantic Plumbing development consists of two 11-story, through-block structures joined by a seven-story skybridge that spans a new internal street. On the north side of the site, a glass rental building is wrapped in a screen of multicolored terra-cotta baguettes. On the south side of the site, a glass and steel building is home to Whyle, a new furnished apartment concept.

Although 901W shares a general sensibility with Atlantic Plumbing’s two previous buildings, its refined design reflects the changes in the neighborhood that have occurred since the completion of those structures.

On the north side of the site, a glass rental building is wrapped in a screen of multicolored terra-cotta baguettes. The screen’s depth and warm colors recall older masonry structures—an effect reinforced by the regular openings that evoke punched windows in a masonry façade. Inside, a similar effect is achieved with walnut, brass, and leather finishes that give the building’s refined public spaces a historic resonance.

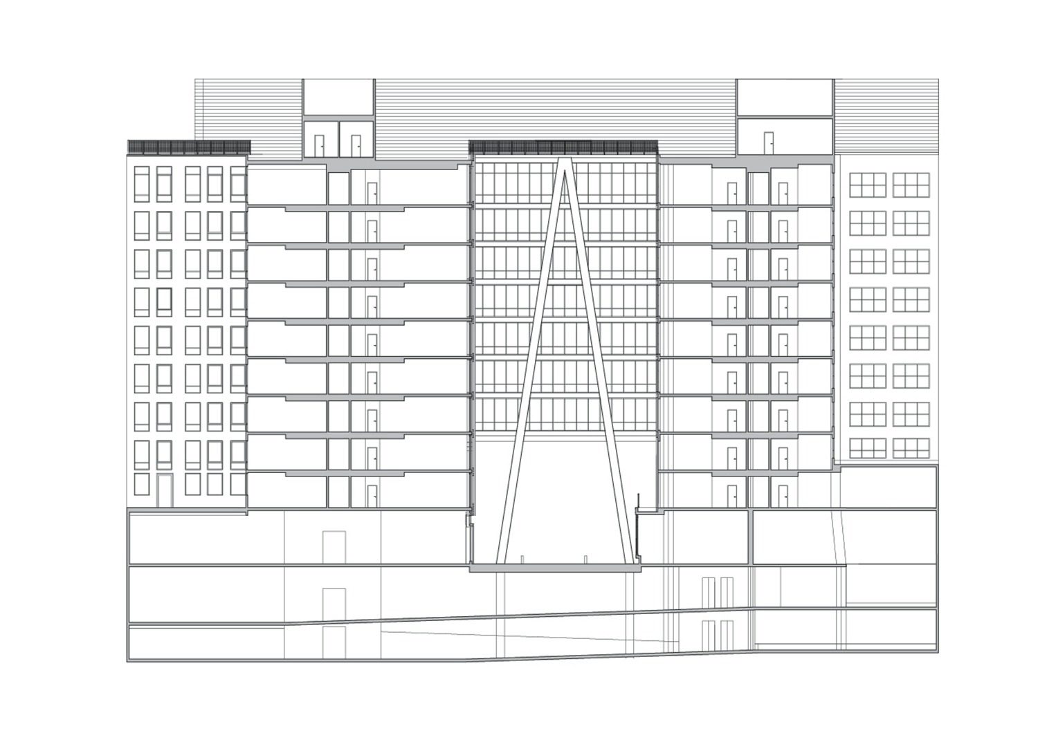
On floors four through nine, the apartments continue into the glass and concrete skybridge that spans a new internal street—inspired by the Dutch woonerf, or “living street.” The skybridge connects the rental building to the structure on the south side of the site, a unique rental building that is home to Whyle, a new short-stay furnished apartment concept.

901W is at the top of this isometric drawing. The multi-parcel Atlantic Plumbing development also includes two additional buildings designed by MA: “Atlantic Plumbing 2112”—a new apartment building, seen at the center of the drawing and “Atlantic Plumbing 2030”—a condo building at the bottom of the drawing.

The concrete supports of the skybridge angle down to the street, offering both an architectural focal point in the newly created space and a gateway to the project from the east. The street itself, which restores a connection through the block that was removed long ago, is lined on both sides with new retail spaces.

Left: Site section. 901W’s two buildings are connected by shared underground parking and by a seven-story glass skybridge. Right: Typical plan, floors 4–9.

On the south side of the site, a unique rental building is home to Whyle, a new short-term rental concept. The building is wrapped in a glass and steel curtain wall with factory-style operable windows to imbue a refined industrial aesthetic. MA carried this industrial motif within Whyle's apartments by incorporating monolithic concrete-inspired custom grey-toned wood plank flooring, patinated metal cladding, and cool tones to complement the architectural features. Pops of warm colors and textures add contrast and comfort.