Morris Adjmi Architects

250 Bowery

48,000 square feet
8 stories, 24 units
New York, New York
2013

This residential building has a deceptively simple steel and glass façade that brings upscale, factory-inspired architecture to New York’s quickly changing Bowery neighborhood.

Designed in collaboration with Aldo Andreoli, 250 Bowery is a contemporary glass and metal structure that stands in stark contrast to the mix of nineteenth-century buildings lining the Bowery. Although the loft building was designed with the future of the neighborhood in mind, it strives to be sensitive toward its present context. A muted façade subdivided by a hierarchical system of layered grids helps mitigate the building’s perceived scale while giving it a surprising depth. Metal channels, flat panels, and factory-sash windows divide its basic mass into layered grids accentuated by light and shadow.

250 Bowery was one of the first upscale residential buildings constructed on the historic street. The eight-story structure houses 24 condominium units, including duplex penthouses, and has a landscape terrace on the roof. Along with the nearby New Museum and other recent projects, it’s reinvigorating the neighborhood with a new architectural scale and new cultural amenities, completing the streetwall with retail and exhibition space at ground level.

A composition of layered grids defines the 250 Bowery’s one-foot‑deep façade. The primary grid of metal channels is subdivided by cruciform panels framing a smaller grid of factory-style floor‑to-ceiling windows with operable center panes.

250 Bowery’s interiors are finished with wide-plank white oak floors, custom cabinetry, and high-end fixtures. Duplex units feature double-height spaces and private roof terraces.

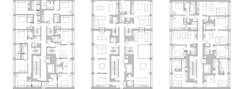
Left and Middle: 250 Bowery’s four duplex units spanning levels 7 and 8 feature open floor plans and enormous windows that make up nearly the entire outer wall.

Right: Typical plan, floors 2–6.